Agenda Highlights 3/5/24

Satellite image of 1221 Mabel Avenue

The Fort Smith Board of Directors meeting scheduled for 3-5-24 will begin with a vote on a zoning change for 1221 Mabel Avenue to facilitate the sale of an existing single family house.

Learn more at pages 3-15 of the agenda pdf
design plans for duplex at 6600 Boston

The Board will vote on a zoning change for 6600 Boston to allow a vacant lot to be developed into 5 two-story duplexes.

Learn more at pages 16-49 of the agenda pdf
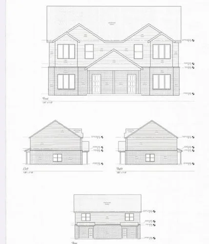
design plan for duplex at 6605 Boston

The Board will vote on a zoning change for 6605 and 6607 Boston to allow for the building of 2 duplexes.

Learn more at pages 50-69 of the agenda pdf
623 Garrison City offices exterior

The Board will vote on EITHER a 5 year lease on the entire 623 Garrison building for City offices and parking, including adding leasing the space on the 6th floor, half of the 1st and 2nd floors, and basement storage space that has not been previously leased by the City at a monthly rent of $32,500 through August 2024, then $47,766.81 through February 28,2029 (The intention of adding the additional space is to eliminate overcrowding conditions in the current office space) OR a 5 year lease on only the space in the building currently leased by the City for a monthly rent of $33,500 for 2024, $34,500 for 2025, $35,500 for 2026, $36,500 for 2027, and $37,500 for 2028.

Learn more at pages 70-97 of the agenda pdf
arkansas state capitol building exterior

The Board will vote on a resolution to send five recommendations to the State legislature for them to address in their next session. The recommendations are a constitutional amendment to permit economic incentives for retail projects (like the one for Project X), changes to allow the ability to use red light and speed cameras that take pictures of the license plates (but not the drivers) for traffic law enforcement, changes to allow the right to hold a third party liable if they caused a workers compensation claim, an amendment to Act 537 of 2023 that would address the high cost of implementation of programs to make counseling available to firefighters and police officers after they respond to traumatic calls, and changes to prohibit anyone from purchasing property from the Commissioner of State Lands if they owe a municipality outstanding clean up liens.

Learn more at pages 98-100 of the agenda pdf
Fort Chaffee Redevelopment Authority logo

The Board will vote on a resolution requesting the Chair of the Fort Chaffee Redevelopment Authority (FCRA) to attend a Fort Smith Board of Directors meeting to answer questions prepared at a meeting between the beneficiaries of the trust’s 4 Mayors, the County Judge, the City Administrators, and the County Administrators. The questions to be posed are regarding the dissolution of the FCRA including planned timelines for dissolution, what steps need taken between now and then, how much land can still be sold and how much will be left after the dissolution, how much money the FCRA currently has in the bank, environmental issues known or expected prior to dissolution, and how many files will need transferred to the beneficiaries after the dissolution.

Learn more at pages 101-105 of the agenda pdf
collage of pics and map of Carol Ann Cross park greenway and Boardwalk project

The Board will vote on whether to approve a contract with Crawford Construction for $1,179,462.50 for a greenway and boardwalk at Carol Ann Cross Park. The boardwalk from Wickcraft Boardwalks will be made of durable low-maintenance HDPE plastic.

Learn more at pages 106-111 of the agenda pdf
map for replacement of bathrooms at Fort Smith Park

The Board will vote on whether to approve a contract with Crawford Construction for $67,772 to demolish the flood damaged restrooms at Fort Smith Park and replace them with new prefabricated restrooms from CXT. The new restrooms would be delivered in April and open by late May 2024.

Learn more at pages 115-118 of the agenda pdf
exterior of the police station at night

The Board will vote on whether to approve a contract with Malone’s Mechanical for $326,916 for a new replacement cooling tower and boiler system for the Police Station.

Learn more at pages 119-121 of the agenda pdf
Contact Your Directors
Previous
Previous

Agenda Highlights 3/18/24

Next
Next

Agenda Highlights 2/27/24